

| 物件種目 | マンション | ||
|---|---|---|---|
| 建物名 | ザ・サンメゾン文京本郷エルド | 部屋番号 | *** |
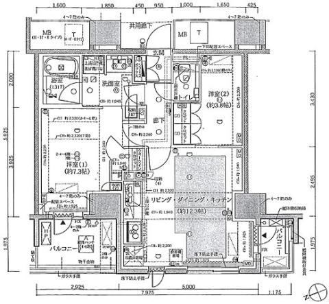
| 間取り | 2LDK LDK12.3帖 , 洋室7.3帖・3.8帖 | ||
| 面積 | 54.31m² | バルコニー | - |
| 建物構造 | RC | 階建て/所在階 | 地上8階/地下1階/*** |
| 築年月 | 2015年08月 | ||
| 所在地 | 文京区本郷4-36-8 | ||
| 交通 |
都営大江戸線 「本郷三丁目」駅 徒歩4分 東京メトロ丸の内線 「本郷三丁目」駅 徒歩5分 都営三田線 「春日」駅 徒歩8分 都営大江戸線 「春日」駅 徒歩8分 |
||
| 賃料 | *** | 管理費・共益費 | *** |
| 敷金 | *** | 礼金 | *** |
| 敷引き | - | 償却金 | - |
| 保証金 | - | 鍵交換費用 | 任意 |
| 更新料 | *** | ||
| 保険 | 有(23,000円/2年) | ||
| 保証会社 | 利用必須 (初回保証料:賃料総額の40%~) | ||
| 小学校 | 文京区本郷小学校 | 中学校 | 文京区本郷台中学校 |
| 自転車置場 | 有り | ||
| 現況 | 居住中 | 引渡 | 相談 |
| 賃貸借区分 | 普通賃貸借 | 契約期間 | 2年 |
| 設備仕様 | バストイレ別 , 給湯 , コンロ3口以上 , システムキッチン , IHクッキングヒーター , 浴室乾燥機 , シャワー , 温水洗浄暖房便座 , 独立洗面 , 室内洗濯機置場 , 角部屋 , エアコン , フローリング , 床暖房 , 収納 , ウォークインクローゼット , バルコニー , インターネット対応 , シューズボックス , エレベーター , オートロック , 宅配BOX , TVインターホン , 駐輪場 , 敷地内ゴミ置場 , メールボックス | ||
| 取引態様 | 仲介 | ||
| 情報更新日 | 2020年03月03日 | ||
|
【オレンジルーム文京店】 〒112-0002 東京都文京区小石川1-14-3 THE TOWER KOISHIKAWA 1F |