ルフォンプログレ本郷三丁目の質問・見学・物件詳細を知りたい
物件概要
| 物件種目 | マンション | ||
|---|---|---|---|
| 建物名 | ルフォンプログレ本郷三丁目 | 部屋番号 | 601号室 |
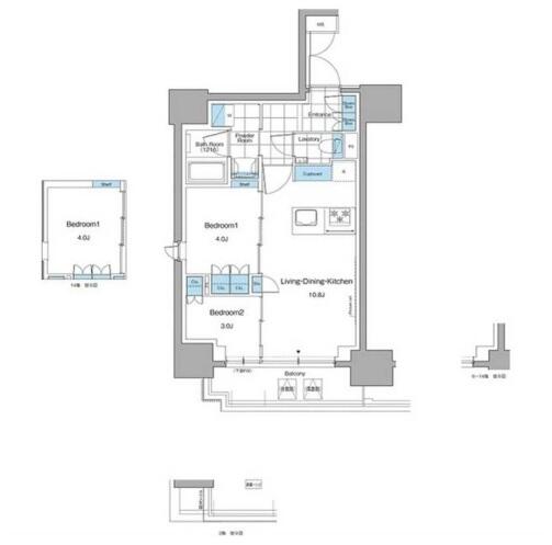
| 間取り | 2LDK (LDK10.8帖 , 洋室4.0帖 洋室3.0帖) | ||
| 面積 | 42.61m² | バルコニー | - |
| 建物構造 | RC | 階建て/所在階 | 地上14階/地下1階/6階部分 |
| 築年月 | 2025年11月 | ||
| 所在地 | 文京区本郷3-20 | ||
| 交通 |
東京メトロ丸の内線 「本郷三丁目」駅 徒歩6分 都営大江戸線 「本郷三丁目」駅 徒歩4分 東京メトロ千代田線 「湯島」駅 徒歩10分 JR中央線 「御茶ノ水」駅 徒歩10分 |
||
| 賃料 | 27.8万円 | 管理費・共益費 | 15,000円 |
| 敷金 | 1ヶ月 | 礼金 | 0ヶ月 |
| 敷引き | - | 償却金 | - |
| 保証金 | - | 鍵交換費用 | - |
| 更新料 | 1ヶ月 | ||
| 保険 | 有(16,550円/2年) | ||
| 保証会社 | 利用必須 初回保証料:賃料総額の50% 月次保証料:賃料総額の1% | ||
| その他費用 | 清掃費:45,980円 エアコン清掃費:33,000円 | ||
| 小学校 | 湯島小学校 | 中学校 | 本郷台中学校 |
| 駐車場 | 有 | ||
| 駐車場詳細 | 要確認 |
||
| 自転車置場 | 有り | ||
| バイク置場 | 有り | ||
| 現況 | 空室 | 引渡 | 即時 |
| 賃貸借区分 | 定期賃貸借 | 契約期間 | 2年 |
| 設備仕様 | バストイレ別 , 給湯 , コンロ3口以上 , システムキッチン , カウンターキッチン , グリル , 浴室乾燥機 , 追い炊き , 暖房便座 , 温水洗浄暖房便座 , 独立洗面 , 室内洗濯機置場 , 角部屋 , エアコン , フローリング , 収納 , ウォークインクローゼット , バルコニー , インターネット対応 , インターネット利用料無料 , 光ファイバー , BS , CS , 24時間換気 , シューズボックス , エレベーター , オートロック , 宅配BOX , 防犯カメラ , TVインターホン , 駐輪場 , バイク置場 , 敷地内ゴミ置場 , メールボックス | ||
| 取引態様 | 仲介 | ||
| 情報更新日 | 2026年02月19日 | ||














































































本郷三丁目駅まで徒歩4分♪ ペット可能の新築物件!
約42.61m²の角部屋タイプの2LDKです。
浴室乾燥機・追い炊き機能付き・独立洗面台・温水洗浄便座など水回りの設備が充実してます。
キッチンは3口コンロのグリル付きでお料理の幅が広がります。
洋室には収納も付いており収納力も抜群♪
エアコンも全室備え付けられております。
〇建物情報〇
文京区本郷3丁目の賃貸マンション「ルフォンプログレ本郷三丁目」。
都営大江戸線「本郷三丁目」駅徒歩4分の好立地!
そのほか「湯島」駅・「御茶ノ水」駅もご利用いただけます!
2025年11月竣工・地下1階 地上14階建て。
TVモニターつきオートロック・宅配ボックス完備!
敷地内駐輪場・バイク置き場・駐車場もございます。
インターネット無料で月々の通信費を節約可能!
また、こちらはペット相談可のマンションですので、大切な家族の一員である
ペットと一緒にご入居いただけます!
○周辺環境○
「ルフォンプログレ本郷三丁目」は大通りから少し奥に入った位置に建っており、
近隣には郵便局やコンビニなどがございます。
徒歩5分ほどのところにスーパー「マルエツ」「まいばすけっと」がございますので、
日々のお買い物に便利です!
「本郷」「湯島」「御茶ノ水」の3エリアが生活圏内!
目的に応じた使い分けが可能です。