EDIT文京千石Ⅱの質問・見学・物件詳細を知りたい
物件概要
| 物件種目 | マンション | ||
|---|---|---|---|
| 建物名 | EDIT文京千石Ⅱ | 部屋番号 | 402号室 |
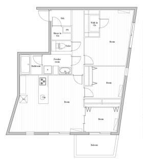
| 間取り | 3LDK (LDK) | ||
| 面積 | 72.02m² | バルコニー | - |
| 建物構造 | RC | 階建て/所在階 | 地上5階/4階部分 |
| 築年月 | 2025年11月 | ||
| 所在地 | 文京区千石4-35-12 | ||
| 交通 |
都営三田線 「千石」駅 徒歩5分 都営三田線 「巣鴨」駅 徒歩8分 JR山手線 「巣鴨」駅 徒歩8分 東京メトロ南北線 「駒込」駅 徒歩14分 |
||
| 賃料 | 34.85万円 | 管理費・共益費 | 25,000円 |
| 敷金 | 0ヶ月 | 礼金 | 0ヶ月 |
| 敷引き | - | 償却金 | - |
| 保証金 | - | 鍵交換費用 | - |
| 更新料 | 新賃料1ヶ月 | ||
| 保険 | 有(25,000円/2年) | ||
| 保証会社 | 利用必須 Jリースorクレディセゾン | ||
| フリーレント | 1ヶ月 | ||
| 小学校 | 林町小学校 | 中学校 | 第十中学校 |
| 自転車置場 | 有り | ||
| 現況 | 空室 | 引渡 | 即時 |
| 賃貸借区分 | 普通賃貸借 | 契約期間 | 2年 |
| 設備仕様 | コンロ3口以上 , システムキッチン , カウンターキッチン , 浴室乾燥機 , 追い炊き , 暖房便座 , 温水洗浄暖房便座 , 独立洗面 , 室内洗濯機置場 , 角部屋 , エアコン , フローリング , 収納 , ウォークインクローゼット , インターネット対応 , インターネット利用料無料 , シューズボックス , デザイナーズ , エレベーター , オートロック , 宅配BOX , 防犯カメラ , TVインターホン , 駐輪場 , 敷地内ゴミ置場 , メールボックス | ||
| 取引態様 | 仲介 | ||
| 情報更新日 | 2025年12月09日 | ||







































































【敷金礼金0、フリーレント1ヵ月】ELV付の新築デザイナーズレジデンス。
約72.02m²の3LDK・角部屋タイプ。
追い焚き式バスや浴室乾燥機、独立洗面台やシャワートイレなど、水回りの設備が充実しています。
キッチンは人気のカウンタータイプ!
ガス3口コンロ設置済みでお料理の幅が広がりそう♪
3つの洋室にはそれぞれクローゼットが用意されていますほか、
一つの洋室には大容量のWIC、玄関にはSICがございます。
こちらはペット相談可(敷金1ヶ月増)のお部屋です!
○建物情報○
文京区千石4丁目の賃貸マンション「EDIT文京千石Ⅱ」。
都営三田線「千石」駅徒歩5分の駅チカ物件です!
そのほか、山手線「巣鴨」駅も徒歩8分で利用可能です。
2025年11月竣工・地上5階建て。
TVモニターつきオートロック・宅配ボックス・敷地内ゴミ置き場完備!
敷地内に駐輪場もございます。
インターネット無料で月々の通信費を節約可能!
また、こちらはペット相談可のマンションですので
大切な家族の一員であるペットと一緒にご入居いただけます!
(猫又は小型犬併せて1匹まで可)
○周辺環境○
物件は大通りから奥に入った閑静な住宅街に位置しております。
徒歩6分のところにスーパー「マルエツプチ」がございますので、日々のお買い物に便利です!