プレサンス本駒込アカデミアの質問・見学・物件詳細を知りたい
物件概要
| 物件種目 | マンション | ||
|---|---|---|---|
| 建物名 | プレサンス本駒込アカデミア | 部屋番号 | 906号室 |
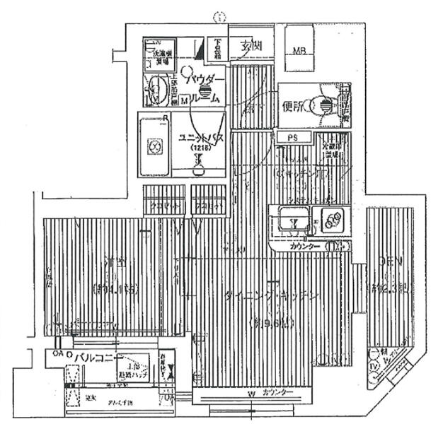
| 間取り | 1LDK (DK9.6帖 , 洋室4.1帖 , S2.8帖) | ||
| 面積 | 38.56m² | バルコニー | 東 |
| 建物構造 | RC | 階建て/所在階 | 地上15階/9階部分 |
| 築年月 | 2008年05月 | ||
| 所在地 | 文京区本駒込1-6-14 | ||
| 交通 |
東京メトロ南北線 「本駒込」駅 徒歩1分 都営三田線 「白山」駅 徒歩5分 |
||
| 賃料 | 15.9万円 | 管理費・共益費 | 10,000円 |
| 敷金 | 0ヶ月 | 礼金 | 1ヶ月 |
| 敷引き | - | 償却金 | - |
| 保証金 | - | 鍵交換費用 | 33,000円 |
| 更新料 | 新賃料1ヶ月 | ||
| 保険 | 有(22,000円/2年) | ||
| 保証会社 | 利用必須 初回保証料:賃料総額の50% 年間保証料:15,000円 | ||
| その他費用 | クリーニング代:100,000円 抗菌代(エアコン洗浄):16,500円 24時間サポート代:16,500円(2年) |
||
| 小学校 | 駒本小学校 | 中学校 | 文林中学校 |
| 自転車置場 | 有り | ||
| バイク置場 | 無し | ||
| 現況 | 居住中 | 引渡 | 相談 |
| 賃貸借区分 | 普通賃貸借 | 契約期間 | 2年 |
| 設備仕様 | バストイレ別 , 給湯 , ガスキッチン , コンロ2口 , システムキッチン , カウンターキッチン , 浴室乾燥機 , シャワー , 独立洗面 , 室内洗濯機置場 , エアコン , フローリング , 床暖房 , 収納 , バルコニー , インターネット対応 , 光ファイバー , CATV , BS , CS , シューズボックス , エレベーター , オートロック , 防犯カメラ , TVインターホン , 駐輪場 , 敷地内ゴミ置場 , メールボックス | ||
| 取引態様 | 仲介 | ||
| 情報更新日 | 2026年05月11日 | ||


























































DENつきの1DK! カウンターキッチン!
約38.56m²の1SDKタイプ。
キッチンは人気のカウンタータイプ!
2口ガスコンロ設置済みで自炊派の方にお勧めです♪
リビング横には約2.8帖のDEN(サービスルーム)がございますので、在宅ワークなどに便利です!
バルコニーは東向きです。
○建物情報○
文京区本駒込の分譲賃貸マンション「プレサンス本駒込アカデミア」。
東京メトロ南北線「本駒込」駅徒歩1分の好立地!
そのほか「東大前」駅・「白山」駅・「駒込」駅などもご利用いただけます。
TVモニターつきオートロックや宅配ボックスなど設備充実!