プラウド文京千駄木の質問・見学・物件詳細を知りたい
物件概要
| 物件種目 | マンション | ||
|---|---|---|---|
| 建物名 | プラウド文京千駄木 | 部屋番号 | *** |
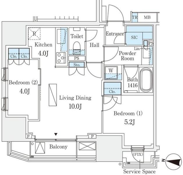
| 間取り | 2LDK (LDK14帖 , 洋室5.2帖、4.0帖) | ||
| 面積 | 54.13m² | バルコニー | 北西 |
| 建物構造 | RC | 階建て/所在階 | 地上14階/*** |
| 築年月 | 2017年11月 | ||
| 所在地 | 文京区千駄木2-1-12 | ||
| 交通 |
東京メトロ千代田線 「千駄木」駅 徒歩5分 東京メトロ千代田線 「根津」駅 徒歩6分 東京メトロ南北線 「東大前」駅 徒歩9分 |
||
| 賃料 | *** | 管理費・共益費 | *** |
| 敷金 | *** | 礼金 | *** |
| 敷引き | - | 償却金 | - |
| 保証金 | - | 鍵交換費用 | 22,000円(税込み) |
| 更新料 | *** | ||
| 保険 | 有 | ||
| 保証会社 | 利用必須 (初回保証料:総賃料の50%~2年目以降:10,000円/年) | ||
| その他費用 | 口座振替事務手数料:110円/月(税込み) 退去時清掃費用:71,451円(税込み) |
||
| 小学校 | 汐見小学校 | 中学校 | 第八中学校 |
| 駐車場 | 無 | ||
| 自転車置場 | 有り | ||
| 現況 | 空室 | 引渡 | 相談 |
| 賃貸借区分 | 普通賃貸借 | 契約期間 | 2年 |
| 設備仕様 | バストイレ別 , 給湯 , ガスキッチン , コンロ3口以上 , システムキッチン , 独立キッチン , ディスポーザー , グリル , 食器洗浄器 , 浄水器 , 浴室乾燥機 , 追い炊き , シャワー , 暖房便座 , 温水洗浄暖房便座 , 独立洗面 , 室内洗濯機置場 , 角部屋 , エアコン , フローリング , 床暖房 , 収納 , バルコニー , インターネット対応 , インターネット利用料無料 , CATV , シューズボックス , エレベーター , オートロック , 宅配BOX , TVインターホン , 24時間セキュリティ , 駐輪場 , 敷地内ゴミ置場 , メールボックス | ||
| 取引態様 | 仲介 | ||
| 情報更新日 | 2024年04月11日 | ||








































































角部屋の2LDK! 3口コンロ完備!
約54.13m²の2LDK・角部屋タイプ。
玄関にはシューズボックス、トイレと洗面台が分かれており衛生面でも安全。
バスルームは追い焚き機能に加えて人気サイズの1416です♪
約10帖のリビングダイニングには床暖房が設置されており、冬場も快適にお過ごしいただけます!
キッチンは3口コンロ設置済み。食洗器付き!分譲ならではの充実した設備が揃っています。
各洋室にはそれぞれクローゼットがあり収納力も申し分ございません!
○建物情報○
文京区千駄木2丁目の分譲賃貸マンション「プラウド文京千駄木」。
東京メトロ千代田線「千駄木」駅徒歩5分の好立地!
そのほか「根津」駅・「東大前」駅などもご利用いただけます。
2017年10月竣工・地上14階建て。
TVモニターつきオートロック・宅配ボックス完備。
ホテルライクな内廊下設計!
24時間セキュリティシステム導入で、安心してお住まいいただけます。
また、24時間利用可のゴミ置き場がございますので、日々のゴミ出しも楽々です。
○周辺環境○
物件は千駄木2丁目の交差点角に建っており、近隣には「日本医大付属病院」や「根津神社」などがございます。